Trafalgar Court, Ness Road, Shoeburyness, Essex, SS3 9ES
- Detached House
- 4
- 4
- 4
Key Features:
- Children
Description:
* VIEWING ADVISED * This magnificent contemporary home features sleek and stylish accommodation which in turn offers impressive modern living. A unique individually designed 'Insulated reinforced concrete 'ECO House' offering an incredible 4,478 sqft of floor area 'Lakeview' has been meticulously planned throughout. Completed in May 2020 this 'one of a kind' home is located within a private development. The home boasts a huge amount of outside space with balconies accessed from all the Bedrooms, including a 50ft Balcony Terrace approached via the 'Grand Kitchen/Dining Room' overlooking an idyllic lake.
HOLDING DEPOSIT
One week's rent (£921)
EPC RATING
B Rating- valid until 4 June 2030
COUNCIL TAX
Southend Council, Band F
LOCATION
What three words ///safe.patio.tall
PHOTOGRAPHY
Please note, photos were taken 2021
An extraordinary striking newly built detached eco-friendly house in a private cul-de-sac, with huge windows and bi-fold doors flooding the home with light, whilst still providing privacy.
The property is arranged over four floors comprising a double width car-port, further Garage and secured Bike Storage area. The ground floor entrance is via an impressive reception hallway with a Guest WC, and access to a truly substantial Games / Cinema Room complete with bespoke 'Copper encased' bar area with two sets of aluminium bi-fold double glazed doors opening on to the garden, which in turn overlooks the original 'River Shoe' Lake.
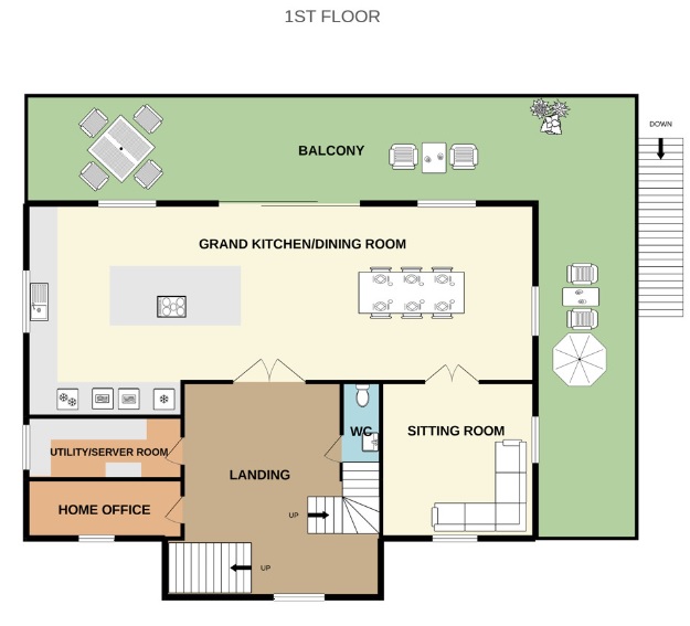
The first floor level comprises a simply luxurious state of the art 'triple aspect' Kitchen / Dining / Family room with large patio doors onto balcony on the first floor offering enviable views across the natural spring lake. From here there is access to a dual aspect cosy Living Room. There is also a large Utility /Server Room, Home Office and a further Cloakroom/WC.
The second floor landing offers with an impressive galleried landing with double height vaulted roof line, inset with a bank of Velux style windows and large glazed balustrade. There are THREE large bedrooms, all having access to personal Balcony spaces with the principle bedroom boasting a large Ensuite Shower Room and large range of floor to ceiling wardrobes and a walk in dressing area. The two front Bedrooms each have a staircase leading to an individually designed mezzanine level which is ideal for a Dressing Room / Den or Study area. The four piece family bathroom offers a superb roll top free standing bath and a fully tiled shower enclosure.
The upper floor comprises a Guest Bedroom with a separate Shower Room and access to a large covered 'all weather' balcony featuring far distance views towards the Thames Estuary.
The River 'Shoe'
The tranquil setting of the home overlooks a beautiful lake. The lake is thought to be the original River Shoe, which originated from a Spring by St Marys' which ran down towards Ness Road and Campfield Road and entered the Gunners Park area, where it would continue into the gully along the beachfront.
The lake is protected by The Essex Wildlife and features gold crest newts and Kingfishers. It also has resident ducks.
General Specification
• Market leading MVHR Ventilation system Zehnder ComfoAir Q, with air tightness levels below 0.6 ach at 50 Pa, mechanical ventilation is essential to extract stale air whilst providing filtered fresh supply air to habitable rooms. MVHR not only provides this, it also recovers the heat energy of the extract air and transfers it to the supply air.
• Heating – 11Kw Mitsubishi Eco Dan Air Source Heat Pump. The Ecodan ASHP is one of the most advanced heating systems available for homeowners , with a A++ ErP Energy Rating Label, it is the ideal clean and green intelligent heating solution on the market. The system is certified by the Microgeneration Certification Scheme (MCS) which certifies that it’s an ‘intelligent technology’ that produces heat from a renewable source. This is a key requirement in applying for quarterly payments from the Government’s Renewable Heat Incentive (RHI) scheme.
• Grundfos Home Power Booster (generates 3.0 bar of pressure across the entire house)
• Full independent Fire Sprinkler system, with 600 litre Tank in Garage, self-tests monthly
• Texecom Elite 64 Intruder Alarm with eight 4k HD Cameras
• Lounge, Games Room, & Bedrooms all hardwired with Cat 6
Build Process
INSULATING CONCRETE FORMWORK | POLYSTYRENE FORMS FROM NUDURA
Insulating Concrete Formwork | ICFs | from NUDURA provide design professionals, architects, home owners and contractors a more efficient way to build. Building with Insulating Concrete Formwork allow homes and commercial buildings to be built stronger, more energy efficient, more comfortable and more environmentally friendly. Insulating Concrete Formwork provides greater energy solutions for any structure.
Insulating Concrete Formwork uses polystyrene connected with a web system that allow the forms to be stacked and steel reinforced. The polystyrene forms are then built up on site and filled with ready-mixed concrete. The polystyrene combined with the concrete offer provide a thermal mass, allowing structures to be heated and cooled more effectively.
The seller has advised the agent that the heating was only required for a period of two weeks over the winter period as the home is designed to retain heat.
The Accommodation Comprises
Entrance via
External video Entryphone. Rhino reinforced aluminium front door with pair of obscure double glazed windows to either side, leads to
Reception Hallway (14.12m x 3.07m (extending to Games Room 4.72m x 1.2m))
Wider than average staircase providing access to first floor accommodation. Borrowed light aluminium double glazed window pane to side aspect overlooking Car-Port area. Amtico flooring. Underfloor heating, powered by ASHP. Wall mounted Video intercom handset, (with further two handsets throughout the accommodation over three floors). Door to Ground Floor Guest WC. Further Hallway door to lobby area to Games Room/ Home Cinema / Bar with further large aluminium double glazed window to rear aspect.
Ground Floor Guest WC / Boot Room (Overall measurement 4.52m x 1.78m)
High level obscure aluminium double glazed window to side aspect. The two piece white suite comprises dual flush WC and pedestal wash hand basin with mixer taps over. Amtico flooring with under floor heating. Impressive Italian ceramic tiling to walls. Smooth plastered ceiling inset with recessed lighting.
Open access through to Cloakroom/Boot Room; Built in floor to ceiling shelving unit/she rack with drawers under.
Home Cinema / Games Room / Bar (Overall measurement 14.07m x 7.3m)
A stunning dual aspect room, featuring a pair of impressive floor to ceiling 'quadruple' bi-fold aluminium double glazed doors to side opening onto large terrace/ patio seating area and Garden. Further large aluminium double glazed window to rear aspect. Amtico flooring. Underfloor heating. Wall mounted Video intercom handset. Feature shaped ceiling inset with recessed lighting, with addition RGBW LES strip lighting offering mood / ambient lighting throughout the room.
Entertainment area
Bespoke built in floor to ceiling entertainment centre with shelving and concealed cupboard space, with 7ft x 4ft recess, inset with projector screen. Ceiling mounted 'Sony' 3D projector (Ubiquiti in ceiling hardwired WiFi booster).
Bar Area (6.8m x 2.92m)
The custom-built bar area (14'1 x 5'1) is encased with a copper surround with 'porcelain tiled bar top' with further working surfaces space inset with circular stainless steel sink unit with mixer tap over. Fitted with a range of under counter storage cupboards and double door fridge/cooler, with integrated 'Bosch' dishwasher.
First Floor Landing space
Impressive almost full height 'South facing' aluminium double glazed window to side aspect inset with 'electric black out' roller blinds. Amtico flooring with under floor heating. Turned staircase inset with glazed balustrade to sending floor Galleried Landing space. Doors to Kitchen/Dining Room, Home Office and Utility/Server Room. Wall mounted Video intercom handset. Feature smooth plastered 'vaulted ceiling' inset with a bank of four Velux style windows to side aspect. Further door to;
First Floor Cloakroom / WC
The white two piece suite comprises dual flush WC and suspended vanity wash hand basin with mixer taps over. Italian ceramic tiling. Amtico flooring. Underfloor heating.
Open Plan 'Triple aspect 'Grand Kitchen / Dining Room (12.7m x 4.9m)
The bespoke kitchen has handcrafted with a comprehensive range of eye and base level units, with modern granite surfaces over with single drainer sink unit with mixer taps over, with an additional 'boiling water' tap. To one aspect the recessed floor to ceiling cupboards inset with a pair of eye level 'De Dietrich' self cleaning ovens. Integrated appliances include dishwasher, separate full height Fridge and Freezer.
The focal part of the room is an oversized large central island (3m x 1.5m) which can accommodate a number of barstools, the area is part recessed, therefore allowing these to be tucked discretely beneath. Under counter storage cupboards. Under counter slimline wine cooler. Large granite surfaces space inset with five ring 'De Dietrich' Induction Hob.
Almost full height pair of aluminium double glazed windows to rear aspect inset with a pair of large aluminium double glazed doors which provide access to a large terrace Balcony which is the full length of the Kitchen / Dining Room. Further aluminium double glazed window to front aspect inset with rolled blind with further aluminium double glazed window to rear aspect. Amtico flooring. Underfloor heating. Wall light points. Smooth plastered ceiling inset with recessed lighting. Pair of doors lead to Dual aspect Living Room.
Impressive 'wrap around' Balcony (15.24m x 2.74m (plus 9.45m x 2.74m))
Exceptionally large balcony space. Powder-coated steel handrail inset with glazed inserts to side and rear aspects with stunning view across the Garden and Lake. Composite decked seating area, with separate Powder-coated steel external staircase to side aspect providing direct access to the Garden space.
Dual Aspect Sitting Room (4.72m x 4.27m)
Almost full height aluminium double glazed windows to rear and side aspects both inset with inset with 'electric black out' roller blinds. Amtico flooring. Underfloor heating. Wall light points. Smooth plastered ceiling inset with recessed lighting.
Utility Room / Server Room (4.27m x 1.8m)
Large aluminium double glazed window to front aspect. The Utility Room is fitted with a range of base level units to two aspects with granite effect working surfaces over with under counter recess for washing machine.. Floor to ceiling larder style storage cupboard. Amtico flooring. Underfloor heating. Smooth plastered ceiling inset with recessed lighting.
Further floor to ceiling 'Hub Cupboard'.
This is the ‘hub’ for all the controls. All utilities meet in this room. Control panel for the alarm and cameras.
Home Office (4.27m x 1.65m)
Aluminium double glazed window to side aspect. Amtico flooring. Underfloor heating. Smooth plastered ceiling inset with recessed lighting.
Glazed balustrade Galleried Landing Space (3.4m x 3m)
Bank of Velux double glazed window inset to vaulted ceiling. Access to Bedrooms and Family Bathroom. Turned staircase with glazed balustrade to third floor accommodation. Wall mounted Video intercom handset. Smooth plastered ceiling inset with recessed lighting. Drop pendant lighting.
Principle Bedroom Suite (6.93m x 4.85m (max))
Pair of aluminium double glazed doors leading to rear Balcony, inset with 'electric black out' roller blinds. leading to Balcony. Almost full height aluminium double glazed window to rear aspect inset with 'electric black out' roller blinds. Built in floor to ceiling wardrobes with further doors to 'Walk in' dresser area. Smooth plastered ceiling inset with recessed lighting.
Door to
Bespoke Ensuite Shower Room (4.7m x 1.27m)
Velux style double glazed window to side aspect. The superb three piece suite comprises dual flush wc, vanity wash hand basin with mixer taps over and double width tiled shower enclosure with wall mounted controls, hand held shower head and drencher style shower over. Ladder style heated towel rail. Italian ceramic tiling to all visible walls with matching floor tiling. Partly tiled walls. Smooth plastered ceiling.
Balcony (5.18m x 1.42m)
Powder-coated steel handrail inset with glazed inserts to three aspect with distance views across towards the Thames Estuary.. Composite decked seating area.
Bedroom Two (4.5m x 4.32m)
Pair of aluminium double glazed doors leading to front Balcony, inset with 'electric black out' roller blinds. Built in floor to ceiling three door wardrobe. Internal open tread staircase providing access to upper mezzanine;
Mezzanine level (4.27m x 2.4m)
Feature shaped aluminium window to front aspect with made to measure fitted blinds. Smooth plastered ceiling inset with recessed lighting. (Some restricted head height). Door to eaves storage space.
Bedroom Three (4.5m x 4.32m)
Pair of aluminium double glazed doors leading to front Balcony, inset with 'electric black out' roller blinds. Built in floor to ceiling three door wardrobe. Internal open tread staircase providing access to upper mezzanine;
Mezzanine Level (4.27m x 2.4m)
Feature shaped aluminium window to front aspect with made to measure fitted blinds. Smooth plastered ceiling inset with recessed lighting. (Some restricted head height). Door to eaves storage space.
Full width Balcony (9.37m x 1.83m)
Part covered, via pitch. Approached via Bedroom Two & Three. Powder-coated steel handrail inset with glazed inserts to three aspect. Composite decked seating area.
Four Piece Family Bathroom (3.23m x 2.95m (max))
Part vaulted ceiling inset with a pair of Velux style windows. The superb four piece suite comprises feature freestanding shaped bath with floor standing mixer taps over with shower head attachment, dual flush wc , pedestal wash hand basin and double width tiled shower enclosure with wall mounted controls, hand held shower head and drencher style shower over. Ladder style heated towel rail. Tiled flooring. Partly tiled walls.
Upper Floor Landing
Approached via turned staircase. Doors to Bedroom and Shower Room. Ubiquiti 'In Wall' hardwired Wifi Booster. Smooth plastered ceiling inset with recessed lighting.
Guest Bedroom (5.5m (max) x 4.88m (some restricted headheight))
Pair of aluminium double glazed doors to rear aspect leading to personal 'all weather' part enclosed Balcony with shaped windows to either side, inset with made to measure blinds. Smooth 'pitched roof line' plastered ceiling inset with recessed lighting
Balcony (4.88m x 1.6m)
Powder-coated steel handrail inset with glazed inserts to three aspect with distance views across to the Thames Estuary.. Composite decked seating area.
Guest Shower Room (2.16m x 1.7m (max) (Some restricted headheight))
The modern three piece suite comprises tiled shower enclosure with wall mounted controls, dual flush WC and vanity wash hand basin with mixer taps over. Partly tiled walls. Tiled flooring. Smooth plastered ceiling with recessed lighting.
To the Outside of the property
The Garden is approached via the Games Room / Cinema Room and commences with a large patio seating area. Attractive composite fencing. The 'wrap around' garden is mainly laid to lawn with open tread external staircase to the side of the property providing access to the first floor balcony/terrace. External wiring under lawn for audio/Garden speakers. The ground floor external walls are attractively cladded in anthracite slate tiles with the upper levels having 1.5mm coloured silicone render. Further lawned area to the rear of the property.
The lawned area overlooks the spring lake.
Double width covered Car Port
Wall mounted electric car charging point. External power socket. External hot & cold water taps. Access to Garage. Door to;
Secured Bike Store (4.37m x 1.17m)
Accessed via entrance key code panel.
Garage
Access via ‘Hormann’ Electric Garage Door. Timber built storage and four metre bench. Ample power sockets.








































