Leitrim Avenue, South Shoebury, Essex, SS3 9HE
- Detached House
- 3
- 1
- 1
Description:
Located within the highly desirable 'Leitrim Avenue' within South Shoeburyness is this three bed detached Chalet/Bungalow set within a generous size plot with large frontage offering ample parking and Garage/Carport and approx. 55ft rear Garden.
Available immediately.
Large canopied entrance porch / seating area providing access to uPVC entrance door inset with arched obscure double glazed inset with obscure uPVC double glazed windows to either side.
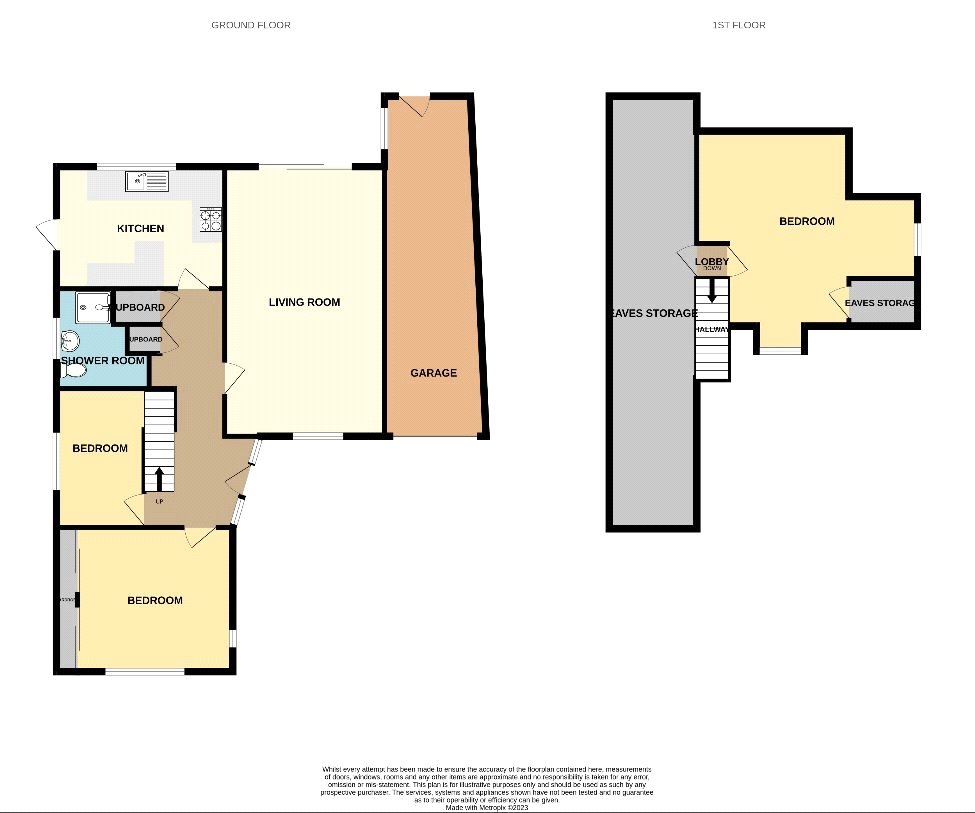
Reception Hallway (5.56m x 1.93m (max) (reducing to 0.91m))
Panelled doors to Bedrooms and Bathroom. Part glazed doors to Kitchen and Living Room. Wall light point. Staircase providing access to the first floor Bedroom. Pair of doors to separate storage cupboards with ample storage space. Thermostat control panel. Radiator. Smooth plastered ceiling.
Dual aspect Living Room (6.1m x 3.76m)
uPVC double glazed window to front aspect. uPVC double glazed sliding patio doors to rear providing direct access to the Garden. Two radiators. Curved cornice to smooth plastered ceiling.
Kitchen (3.96m x 2.74m)
Large uPVC double glazed window to rear overlooking garden. Obscure uPVC double glazed window to sideway access. The Kitchen is fitted with a comprehensive range of eye and base level units with rolled edge working surfaces over inset with single drainer 'one-and-a-quarter' sink unit with mixer tap over. Built in 'Belling' electric oven with split level 'Neff' four ring gas hob with concealed extractor over. Integrated upright fridge/freezer. Under counter appliances (to remain); 'Hoover' washing machine, 'Beko' tumble drier and 'Siemens' dishwasher. Tiled splashback. Radiator. Smooth plastered ceiling.
Dual aspect Main Bedroom (4.3m x 3.38m)
Large uPVC double glazed window to front aspect. Further obscure double glazed window to side aspect. Built in 'six door' sliding wardrobe. Wall light points. Radiator. Smooth plastered ceiling.
Bedroom Two (3.12m x 2.87m (reducing to 2.03m))
uPVC double glazed window to side aspect. Radiator. Smooth plastered ceiling.
Shower Room (2.26m x 2.24m (max))
Obscure uPVC double glazed window to side aspect. The white three piece suite comprises suspended wash hand basin with mixer tap over, dual flush wc and double width shower enclosure with integrated shower unit. Partly tiled walls. Ceramic tiled flooring. Ladder style heated towel rail. Radiator. Smooth plastered ceiling.
First Floor
Approached via the hallway stairs case provides access to level with half height door to side offering access to eaves storage measuring approx. 30ft - 6'5.
Dual Aspect Bedroom (5.1m (max) x 4.32m (max))
uPVC double glazed dormer style window to front aspect with distance partial sea glimpses. Further double glazed window to side offering partial sea glimpses. Radiator. Door to eaves storage. Shaped ceiling- with some restricted head height.
To the Outside of the Property
Rear Garden (16.76m x 11.28m (approx))
The rear Garden is approached via the Living Room and Kitchen sideway access with gated front access. The Garden commences with a block paved patio seating area with the central area being mainly laid to lawn with planted flower bed borders. Brick built storage shed. To the rear of the garden there is a further hardstanding area with Greenhouse adjacent. Further 'wild garden' area to the rear. Established shrubs and trees. Partly fenced boundaries. uPVC double glazed door provides access to garage.
Frontage (Approx 48ft x 40ft)
The property is set back from the road which offers a good size frontage (measuring approx. 48ft (max)). There is a block paved driveway providing direct access to the Garage. Further curved block paved 'in & out' driveway area. Curved flower bed to the front boundary wall. Further lawned area with established trees and shrubs. Gated access to sideway access.
Garage (8.03m x 2.3m (reducing to 1.93m to the rear))
Power and lighting. Access via remote controlled roller shutter door. uPVC double glazed door providing access to the Garden. uPVC double glazed window to the side aspect.
Council Tax Band E
































