Hampton Gardens, Southend-On-Sea, Essex, SS2 6RW
- Semi-Detached House
- 3
- 2
- 2
Description:
* THREE BEDROOM FAMILY HOME * POPULAR LOCATION CLOSE TO SOUTHEND AIRPORT, SOUTHEND HOSPITAL AND A127 TRAVEL LINKS *
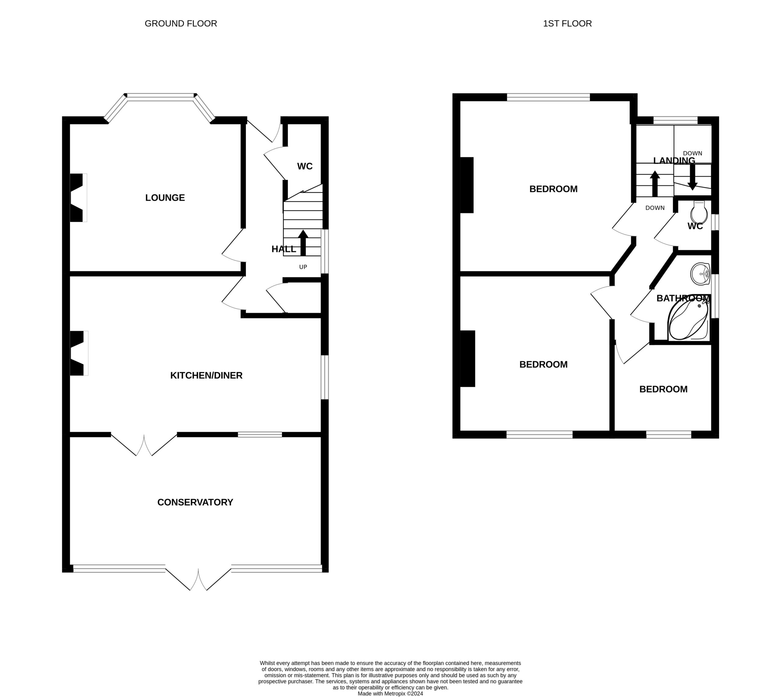
Hunt Roche Lettings of Thorpe Bay are pleased to offer this spacious and well presented three bedroom family home, situated in quiet turning on the Manners Way Estate, within close proximatey to Southend Airport and Hospital and convenient for A127 travel links. The property offers large private garden with detached outbuilding/ home office, good sized kitchen diner, conservatory, separate living room, ground floor wc, two double bedrooms, further single, modern bathroom suite with corner bath, shower over and separate wc. The property is available late June/ early July and is offered on an unfurnished basis
Hunt Roche Lettings of Thorpe Bay are pleased to offer this spacious and well presented three bedroom family home, situated in quiet turning on the Manners Way Estate, within close proximatey to Southend Airport and Hospital and convenient for A127 travel links. The property offers large private garden with detached outbuilding/ home office, good sized kitchen diner, conservatory, separate living room, ground floor wc, two double bedrooms, further single, modern bathroom suite with corner bath, shower over and separate wc. The property is available late June/ early July and is offered on an unfurnished basis





















